Virtual MRF Public Meeting
|
PROJECT OVERVIEW
The proposed new Lee County Material Recycling Facility (MRF) will be where all the county’s household and business recycling material is processed. This includes the handling of clean bottles, cans, paper, cardboard and plastic containers. It will be a fully indoor operation. Trucks will tip the materials inside; the machinery will be inside, and the rolling stock will be inside. The facility will only accept household and business recycling material; there will be inspections of inbound material to remove unacceptable materials.
WHY DOES LEE COUNTY NEED THIS NEW FACILITY?
As Lee County continues to grow, Solid Waste’s current Material Recycling Facility is projected to reach capacity for processing materials. Lee County Solid Waste consistently has been ranked as one of the top five recycling communities in the state of Florida. To ensure that the County meets recycling requirements, a facility with increased capacity is necessary.
WHAT THE MRF IS, AND WHAT IT IS NOT
View the full presentation from the March 5, 2024 Lee Board of County Commissioners’ meeting.
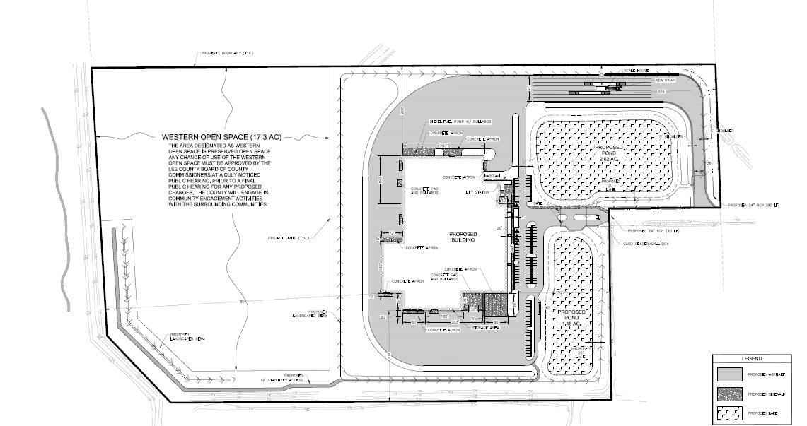
Site Plan, May 2025
Conceptual Elevations, December 2024
COMMUNICATIONS TIMELINE TO DATE
The communications timeline for this project includes:
- March 2023: Lee Board of County Commissioners briefed on status of the property search.
-
June 2023: Hosted Gulf Coast Landfill Tour with Pelican Preserve Board members.
-
Aug. 1, 2023: At a publicly noticed meeting, Lee Board of County Commissioners approves purchase of property.
-
October 2023: Lee County Sold Waste met with Pelican Preserve Board.
-
November 2023: Lee County Solid Waste invited the public to a meeting at Gateway CDD Board Room.
-
January 2024: Lee County Solid Waste hosted a tour of the MRF at Buckingham for Pelican Preserve Board Members.
-
March 5, 2024: Lee County Solid Waste provided update at regularly scheduled and publicly noticed Lee Board of County Commissioners’ meeting.
-
March 21, 2024: Lee County held a open house-style public information session:
- Thursday, March 21, 2024
- 4 – 6 p.m.
- Gateway Trinity Lutheran Church, 11381 Gateway Blvd, Fort Myers, FL 33913
-
April 9, 2024: Lee County held a public information meeting from 4 - 5:30pm at the Pelican Preserve Community Center. A video of this presentation is available
here.
-
April 16, 2024: Lee County Board of County Commissioners approved closing on property for MRF.
July 11, 2024: Updated the Material Recycling Facility (MRF) webpage to add a working site plan, conceptual floor plan, conceptual schedule and a copy of Lee County’s Ordinance 22-10. A
newsletter was sent to subscribers with more detailed information.
August 29, 2024: Updated the Material Recycling Facility (MRF) webpage to update the F.A.Q.’s and to add the facility equipment and sizing memo. A
newsletter was sent to subscribers with more detailed information.
December 6, 2024: Updated the Material Recycling Facility (MRF) webpage to add the conceptual building elevations, Army Corps of Engineers 404 approvals and new overview schedule. A
newsletter was sent to subscribers with more detailed information.
- February 18, 2025: Lee County Board of County Commissioners approved a Reimbursement Resolution for the Recycling Facility. The resolution provides the department the option to pursue reimbursement of expenses from the bond proceeds, as they relate to the MRF project. The resolution does not bind the County to any financial commitments or obligations.
- March 4, 2025: Updated the Material Recycling Facility (MRF) webpage including updates to the Site Plan and Conceptual Schedule, a link to the MRF Equipment RFP, and a link to the Environmental Resource Permit Application. A newsletter was sent to subscribers with more detailed information.
- May 20, 2025: Lee County Board of County Commissioners approved a contract to construct off-site water and sewer improvements to serve the new Recycling Facility. Construction of the improvements will start in 2025.

FREQUENTLY ASKED QUESTIONS
To learn more about this project, please explore the below list of frequently asked questions. If you have questions that are not covered, you can contact Lee County Solid Waste at
SolidWaste@leegov.com.
ADDITIONAL RESOURCES
PROJECT REPORTS, SUBMITTALS AND STUDIES